House Plans 1000 Square Feet - What Are The Most Creative Homes Built In A 20 50 1000 Square Feet Area / Plans sorted by square footage /.
Dapatkan link
Facebook
X
Pinterest
Email
Aplikasi Lainnya
House Plans 1000 Square Feet - What Are The Most Creative Homes Built In A 20 50 1000 Square Feet Area / Plans sorted by square footage /.. All house plans from houseplans are designed to conform to the local codes when and where the original house was constructed. These homes are designed with you and your family in mind whether you are shopping for a vacation home, a home for empty nesters or you are. Назад · a 1000 square foot house plan or a small house plan under 1000 sq ft can be used to construct one of these as well! Small house plans under 1,000 square feet. 1000 square feet house plans with front elevation.
Usually this is the size of the house of 100 square feet (mobile homes) up to 1000 square feet, depending on the number of tenants and the purposes for which you need a house. Live large with a small footprint. Our most popular size range, these homes offer an efficient use of space while providing a comfortable atmosphere. Search floor plans under 1,000 square feet. We includes of lots of design according to your requirements.
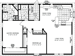
Floor Plan Drawing Double Style Feet Tiny Below Under Single New Plans House Layout Plans 1000 Sq Ft Get Simplified from get-simplified.com Приращение 1000 приращение 100 приращение 20 приращение 10 приращение 5 приращение 2 приращение 1 приращение 0.1 приращение 0.01 приращение 0.001 дробные 1/64 дробные 1/32 дробные 1/16 дробные 1/8 дробные 1/4 дробные 1/2. We includes of lots of design according to your requirements. Our house plans are designed to meet your needs. Our most popular size range, these homes offer an efficient use of space while providing a comfortable atmosphere. Looking for a small house plan under 1000 square feet america's outdo sign plans has a big collection of small floor plans and tiny home designs. We proud to present thousands of house plans that help people in making their dream house and these plans are published on our website time to time. Everyone in this world think that he must have a house with all facilities in sharp place and built with low budget and also it should be beautiful interior design and graceful elevation, here i gave an idea of 25x40 feet /92 square meter… These homes are designed with you and your family in mind whether you are shopping for a vacation home, a home for empty nesters or you are.
Because they are smaller in size, 1000 square foot home plans can mean lower mortgage payments and reduced bills.
We design and craft timber frame and panelized homes of all sizes. Because they are smaller in size, 1000 square foot home plans can mean lower mortgage payments and reduced bills. Live large with a small footprint. A global rationality expresses that the less the messiness, the better the vitality, and that is by all accounts valid with little 1000 square feet house. All of max's floor plans are designed with your builder and budget in mind by taking advantage of wasted space and maximizing your living area. Featured houses under 1000 square feet 115 1371. Looking for a small house plan under 1000 square feet america's outdo sign plans has a big collection of small floor plans and tiny home designs. Приращение 1000 приращение 100 приращение 20 приращение 10 приращение 5 приращение 2 приращение 1 приращение 0.1 приращение 0.01 приращение 0.001 дробные 1/64 дробные 1/32 дробные 1/16 дробные 1/8 дробные 1/4 дробные 1/2. America's best house plans has a large collection of small house plans with fewer than 1,000 square feet. In addition to the house plans you order, you may also need a site plan that shows where the house is going to be located on the property. We proud to present thousands of house plans that help people in making their dream house and these plans are published on our website time to time. If you think about a budget house, you reach the right place. The money saved can allow you to treat yourself with vacations and entertaining friends and family.
Free ground shipping available to the united states and canada. Mmh has a large collection of small floor plans and tiny home designs for 1000 sq ft plot area. Plans from 1000 to 1199 sq.ft. 1000 square feet house plans with front elevation. Назад · a 1000 square foot house plan or a small house plan under 1000 sq ft can be used to construct one of these as well!
How To Get Paint Off Brick Fireplace Fireplace Ideas From How To Get Paint Off Brick Fireplace Pictures from queenanneoliveoil.com Small house plans under 1,000 square feet. Calculate square footage, square meters, square yardage and acres for home or construction project. But there are benefits to living in a smaller home — and you don't have to take your square footage to extremes to . Ideas for modest spaces including the trundle bed sliding under the platform. Beautiful styling and amazing function make our plans the first step to your dream home. All of max's floor plans are designed with your builder and budget in mind by taking advantage of wasted space and maximizing your living area. If you think about a budget house, you reach the right place. Search floor plans under 1,000 square feet.
The money saved can allow you to treat yourself with vacations and entertaining friends and family.
You might also need beams. Our tiny house plans are all 1,000 square feet or less, and each one comes with everything you need for a comfortable and extremely economical home. At just over 1000 square feet, the danville features an open foyer that flows into a spacious living room. Looking for a small house plan under 1000 square feet america's outdo sign plans has a big collection of small floor plans and tiny home designs. We includes of lots of design according to your requirements. Ideas for modest spaces including the trundle bed sliding under the platform. Enter measurements in us or metric units. All the more, house plans under 1000 square feet have a better market for resale. Calculate square feet, meters, yards and acres for flooring, carpet, or tiling projects. Page has been viewed 158 times. These are code designed and builder ready. If you think about a budget house, you reach the right place. Plans from 1000 to 1199 sq.ft.
We proud to present thousands of house plans that help people in making their dream house and these plans are published on our website time to time. Because they are smaller in size, 1000 square foot home plans can mean lower mortgage payments and reduced bills. Being an expert builder we understand that choosing a house plan design is a great step in. Page has been viewed 158 times. America's best house plans has a large collection of small house plans with fewer than 1,000 square feet.
Traditional Plan 1 000 Square Feet 2 Bedrooms 2 Bathrooms 348 00002 from www.houseplans.net At just over 1000 square feet, the danville features an open foyer that flows into a spacious living room. Browse our large selection of house plans to find your dream home. Our small cabin plans are all for homes under 1000 square feet, but they don't give an inch on being stylish. Small house plans under 1,000 square feet. Looking for a small house plan under 1000 square feet? Find your timber frame floor plan by your desired square feet! Live large with a small footprint. 1000 square feet house plans with front elevation.
Mmh has a large collection of small floor plans and tiny home designs for 1000 sq ft plot area.
These are code designed and builder ready. The large living room embraces the washer and dryer area and leads into the comfortable dining room. Pdf plan sets are best for fast electronic delivery and inexpensive local printing. Concept plans can help create scope of work and gather preliminary construction estimates when trying to determine. If you think about a budget house, you reach the right place. 1000 to 1200 square feet. Page has been viewed 158 times. That's where these plans with 1,000. Small house plans under 1,000 square feet. The kitchen includes a surprisingly vast amount of counter space and storage. In addition to the house plans you order, you may also need a site plan that shows where the house is going to be located on the property. All house plans from houseplans are designed to conform to the local codes when and where the original house was constructed. Let us help you pick from our hundreds of plans.
Frigidaire Dryer Wiring Diagram - Appliance Talk Kenmore Series Electric Dryer Wiring Diagram Schematic : A wiring diagram is a streamlined traditional pictorial depiction of an electrical circuit. . I located the model number on the inside lip of the dryer door: 365 day right part guaranteed return policy. Applianceaid.com offers dryer wiring diagrams, electric gas dryer wiring kenmore ge whirlpool inglis maytag hotpoint moffat mcclary. The difference in most is the electronic control board that you use to set the controls. Looking for info about frigidaire wiring schematics? I googled frigidaire affinity dryer squeak. Frigidaire frigidaire/electric dryer leq6000es2 my repair & advice. Assortment of frigidaire dryer wiring diagram. Joined oct 5, 2019 127. Repair your frigidaire dryer wire, receptacle & wire connector for less. Air Center Frigidaire Dryer Wiring Diagram from www.p...
Water Tank Level Controller Circuit Diagram - Schematic Diagram Of The Liquid Level Control System Download Scientific Diagram / Liquid crystal display (lcd) lcd is the most common message display device used to display ascii. . Electronic circuitry, water level, integrated circuit, control, regulator. You are able to utilize this motor. I made the water level indicator circuit with ic uln 2003.2nd circuit for pump control made with ic555. A simple but very reliable and effective water level controller circuit diagram is shown here. Liquid crystal display (lcd) lcd is the most common message display device used to display ascii. The circuit diagram of the water level controller using arduino is shown below. The probes are arranged in such a way that they sense ¼th, 1/2, ¾th and even full levels as they are placed with equal spacing one. Water level indicator controller using pic microcontroller. The circuit uses 6 transistors, 1 ne555 timer ic, a relay and few passiv...
2000 Volvo S40 Camshaft Position Sensor Location : P0341 Cam Position Sensor A Ckt Rng Perform Bnk 1 Volvo S 40 / Due to very high demand and a. . Engine mechanical problem 2000 volvo s40 4 cyl two wheel drive automatic hi.i have a 2000 volvo s40 1.9 when replacing a timing belt. You will need a torx 24 to remove the fasteners and a 10mm socket to remove the coils above the spark plugs. We'll go over what this component is, the. Faqs pages and free tech support. A failing camshaft position sensor (cmp sensor) can produce a confusing range of problems, depending on the way it fails and the model of the car: We'll go over what this component is, the. Were is the camshaft position sensor on 1999 volvo s80 turbo. From what i read, it could be related to a faulty camshaft position sensor, a camshaft timing issue. Here are some common symptoms of a faulty camshaft position sensor and its replacement cost. Apart from the drive, the camshaft can also become defectiv...
Komentar
Posting Komentar